Casa semindipendente in vendita

Bra, Via Umberto I
€ 489.000
6 locali 6 locali
270 Mq 270 Mq
3 bagni 3 bagni

Casa semindipendente in vendita

Bra, Via Umberto I

Descrizione annuncio

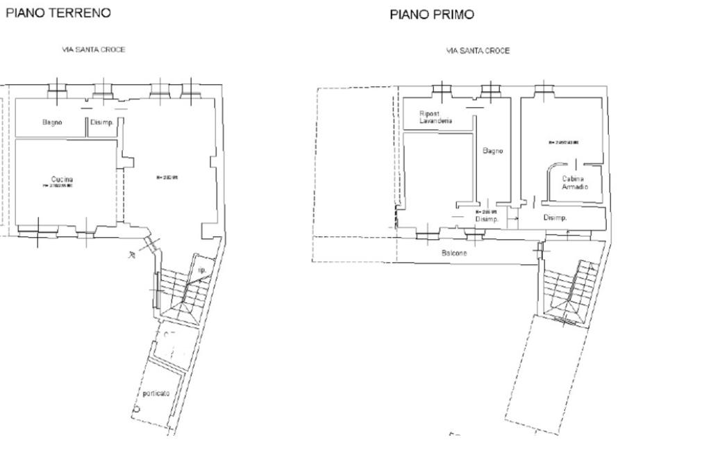
BRA: In via Umberto I, in un interno cortile nel cuore del centro storico, elegante ed affascinante casa semindipendente, libera su due lati e disposta su due livelli abitativi, totalmente ristrutturata nel 2006 con particolare attenzione alla valorizzazione degli elementi architettonici originali.

Al piano terra trova spazio un'ampia zona giorno open space, caratterizzata da scenografiche volte con mattoni a vista; la cucina è inoltre abitabile ed è stata realizzata in muratura.

Un elegante bagno con finiture effetto pietra, soffitto a volta con mattoni a vista e vasca angolare, oltre ad un comodo ripostiglio nel sottoscala, completano il piano.

Tramite scala in pietra di Luserna si accede al piano superiore dove trova spazio la zona notte, caratterizzata da due ampie camere da letto con pavimenti in rovere, una dotata di cabina armadio, l'altra di sfogo sul balcone con affaccio sull'interno cortile.

Ultimano il piano il secondo bagno dotato di doccia ed un ambiente lavanderia.


All'interno della stessa proprietà, ma con accesso indipendente, vi è inoltre un bilocale disposto su due livelli, attualmente affittato con ottima rendita annua, composto dalla zona giorno al piano terreno, e da una camera da letto matrimoniale ed un bagno al piano superiore; questo bilocale può essere facilmente ricollegato all'abitazione principale semplicemente abbattendo una parete, ampliando così i giá generosi ambienti di cui gode la soluzione.

Vi è infine un piano sottotetto di circa 110 mq, sfruttabile come sgombero o per ampliare lo spazio abitativo esistente.

Dona infine valore aggiunto alla soluzione l'ampio cortile privato, in parte destinato ad area verde e in parte pavimentato, ideale da sfruttare nelle belle stagioni per momenti di relax, oltre ad un portico coperto con tre posti auto e magazzino di servizio.

La proprietà è inoltre dotata di pozzo e di impianto di irrigazione automatico.

Il riscaldamento è autonomo a metano ed è a pavimento.

Mostra tutto

Nelle vicinanze

Trasporto pubblico Trasporto pubblico
Bra
Bra
460 m
Bra (stazione FS)
Bra (stazione FS)
440 m
Bra (Gulliver)
Bra (Gulliver)
850 m
Ricariche auto elettriche Ricariche auto elettriche
Stazione di Bra | ENELX
410 m
Bra Servizi SRL
1,6 Km
Scuole Scuole
Scuola Elementare R. L. Montalcini
280 m
Istituto San Giuseppe
280 m
Scuole
410 m
Scuola Secondaria Superiore Ernesto Guala
450 m
Istituto d'Istruzione Superiore "Velso Mucci"
450 m
Farmacia Farmacia
Farmacia Bianchi
140 m
Farmacia
280 m
Farmacia San Rocco
340 m
Farmacia Dalmasso
360 m
Sacro Cuore
370 m
Ospedali Ospedali
Ospedale Santo Spirito
530 m
ASL CN2 Consultorio Familiare CUP
550 m
Casa di Cura Privata Città di Bra
770 m
Supermercati Supermercati
Mercatò Local
170 m
In's Supermercati
660 m
La Casa del Senzaglutine S.n.c.
790 m
Prestofresco
850 m
Lidl
1,0 Km
Negozi Negozi
Panificio Songia
160 m
Delizie e Sapori S.N.C.
180 m
Balocco Fratelli
210 m
Pop Corn
300 m
Panetteria Seghesio
310 m
Bar Bar
Bar Dino
120 m
Bar San Giovanni
150 m
Il Gelatiere
210 m
Bar Carlo Alberto
260 m
Bar La Scaletta
290 m
Ristoranti Ristoranti
Osteria La Pimpinella
190 m
La Boqueria
300 m
Osteria Syslak
320 m
Antico Caffé Boglione
340 m
Pizzeria Santa Lucia
360 m
Mostra tutto

Caratteristiche

Rif.:
61108836
Piano:
Su più livelli di 2
Totale piani:
2
Box:
3
Balconi:
1
Camere da letto:
3
Mostra tutto
Prezzo Prezzo
€ 489.000
Rata mutuo Rata mutuo
€ 2.317 / mese
Spese annue Spese annue
€ 0
Proponi il tuo prezzoProponi il tuo prezzo

Classe Energetica

E
E
E
E
E
E
E
E
E
EP globale non rinnovabile:
195.61 kW h/m² anno
EP globale rinnovabile:
1.35 kW h/m² anno
EP invernale del fabbricato:
EP estiva del fabbricato:
Anno di costruzione:
1900
Riscaldamento:
Autonomo
Tipo impianto:
A pavimento
Tipo alimentazione:
Metano

Ti interessa visionare l'immobile?

Fissa un appuntamento  Fissa un appuntamento

Richiedi informazioni

Clicca su Leggi per aprire l'informativa
* Questi campi sono obbligatori

Calcola il tuo mutuo

Semplice e senza impegno
Anticipo

( % )
Mutuo

( % )

pochi semplici passi

inserisci i tuoi dati
Questionario completato
Grazie per aver richiesto un appuntamento senza impegno con un nostro Consulente del Credito e Assicurativo.

Hai inserito correttamente tutti i dati necessari e a breve riceverai una e-mail con un link da convalidare per inviare i tuoi dati.
Affiliato
Bra Re Sas
Via Pollenzo, 8/A 12042 Bra (CN)

Il nostro staff


  • Davide Leotta
    Affiliato

  • Filippo Cruciani
    Collaboratore

  • Giulia Mantovani
    Coordinatrice
Via Pollenzo, 8/A 12042 Bra (CN)
Zona: Bra
Mostra su mappa
Orari: Lunedì 9:00 - 12:30 / 15:00 - 20:00 Martedì 9:00 - 12:30 / 15:00 - 20:00 Mercoledì 9:00 - 12:30 / 15:00 - 20:00 Giovedì 9:00 - 12:30 / 15:00 - 20:00 Venerdì 9:00 - 12:30 / 15:00 - 20:00 Sabato 9:00 - 12:30 / 15:00 – 18:30
Affiliato
Bra Re Sas
Via Pollenzo, 8/A 12042 Bra (CN)

2026 Tecnocasa Franchising S.p.A. - P. IVA 08365160152 - Via Monte Bianco 60/A 20089 Rozzano (MI). Ogni agenzia ha un proprio titolare ed è autonoma. Privacy policy | Policy utilizzo | Cookie policy