Trilocale in vendita

Bra, Via Edoardo Brizio
€ 87.000
3 locali 3 locali
103 Mq 103 Mq
1 bagno 1 bagno

Trilocale in vendita

Bra, Via Edoardo Brizio

Descrizione annuncio

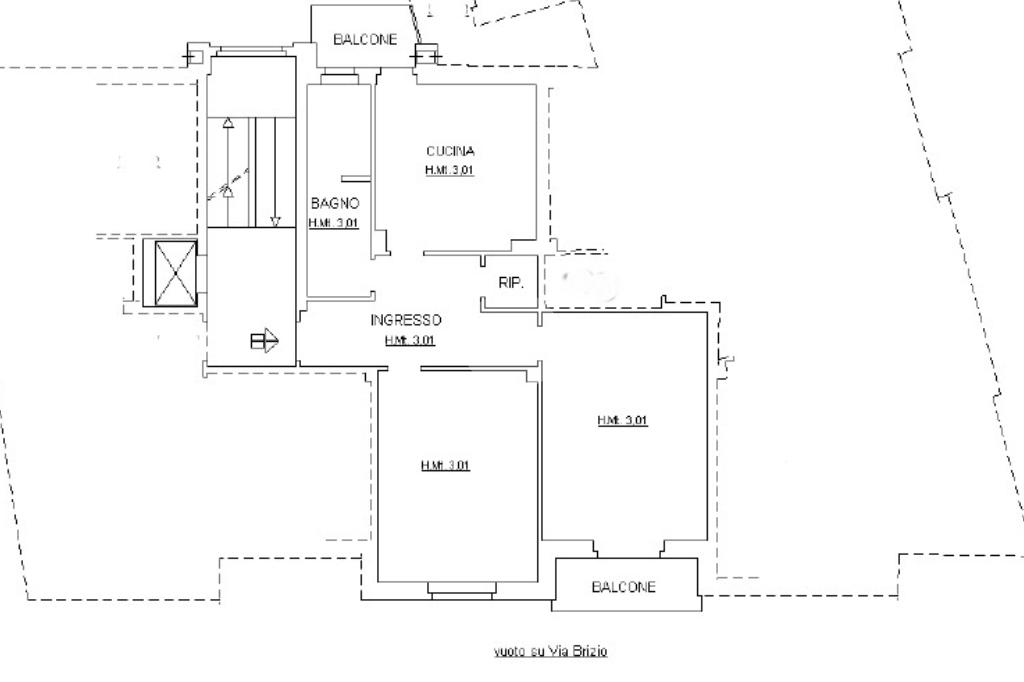
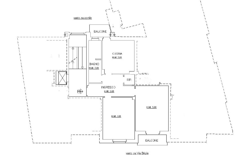
BRA: a pochi passi dal centro ed in posizione comoda a tutti i servizi, spazioso trilocale di 103 mq commerciali sito al quarto e penultimo piano di una palazzina costruita nel 1973, servita di ascensore.

L'appartamento si presenta allo stato originale, fatta eccezione per il bagno ristrutturato nel 2018 e per la porta d'ingresso blindata, e si presta ad una versatile ristrutturazione.

Si distingue inoltre per luminosità, ampi spazi interni e per la piacevole vista panoramica sulla città, sull'arco alpino e sulla collina.

L'ingresso conduce ai vari ambienti della casa.

La cucina è abitabile e gode di sfogo sul primo balcone, orientato verso l'interno cortile.

Le camere da letto sono due, entrambe di ampia metratura ed una delle quali con uscita sul secondo balcone, con affaccio sulla via.

Il bagno ed un comodo ripostiglio completano il piano.

Completano la proprietà il box auto e la cantina.

Il riscaldamento è centralizzato, con termovalvole e contabilizzatori.

L'immobile è libero dal 1 giugno 2026.

Mostra tutto

Nelle vicinanze

Trasporto pubblico Trasporto pubblico
Bra
Bra
940 m
Bra (stazione FS)
Bra (stazione FS)
910 m
Bra (Gulliver)
Bra (Gulliver)
1,3 Km
Ricariche auto elettriche Ricariche auto elettriche
Stazione di Bra | ENELX
890 m
Bra Servizi SRL
1,9 Km
Scuole Scuole
Scuola Media "Carlo Alberto Dalla Chiesa
190 m
Istituto San Giuseppe
330 m
Istituto d'Istruzione Superiore "Velso Mucci"
520 m
Scuola Elementare R. L. Montalcini
720 m
Asilo Nido Comunale
790 m
Farmacia Farmacia
Farmacia Bainotti
90 m
Farmacia
170 m
Farmacia Bianchi
490 m
Farmacia Dalmasso
790 m
Farmacia San Rocco
830 m
Ospedali Ospedali
Ospedale Santo Spirito
200 m
ASL CN2 Consultorio Familiare CUP
250 m
Casa di Cura Privata Città di Bra
1,2 Km
Supermercati Supermercati
In's Supermercati
200 m
La Casa del Senzaglutine S.n.c.
290 m
Mercatò Local
490 m
Sapore di Mare
830 m
Paniate
1,2 Km
Negozi Negozi
Rosso Dario
280 m
Pasticceria Zucchero e Fantasia
310 m
Panetteria Fagnola
330 m
Panificio Songia
370 m
Delizie e Sapori S.N.C.
540 m
Bar Bar
Bar Barbablù
180 m
Harri's Bar
420 m
Bar del Viale
430 m
Bar San Giovanni
480 m
Bar Dino
520 m
Ristoranti Ristoranti
Ristorante Cinese Nin Hao
480 m
Ristorante Il Principe
480 m
Pizzeria Pipote
600 m
Osteria La Pimpinella
700 m
Osteria Syslak
730 m
Mostra tutto

Caratteristiche

Rif.:
61187482
Piano:
4 di 5 con ascensore (Piano alto)
Box:
1
Balconi:
2
Camere da letto:
2
Arredamento:
Assente
Mostra tutto
Prezzo Prezzo
€ 87.000
Rata mutuo Rata mutuo
€ 410 / mese
Spese annue Spese annue
€ 2.500
Proponi il tuo prezzoProponi il tuo prezzo

Classe Energetica

F
F
F
F
F
F
F
F
F
EP globale non rinnovabile:
113.54 kW h/m² anno
EP globale rinnovabile:
0.06 kW h/m² anno
EP invernale del fabbricato:
EP estiva del fabbricato:
Anno di costruzione:
1973
Riscaldamento:
Centralizzato
Tipo impianto:
A radiatori
Tipo alimentazione:
Metano

Ti interessa visionare l'immobile?

Fissa un appuntamento  Fissa un appuntamento

Richiedi informazioni

Clicca su Leggi per aprire l'informativa
* Questi campi sono obbligatori

Calcola il tuo mutuo

Semplice e senza impegno
Anticipo

( % )
Mutuo

( % )

pochi semplici passi

inserisci i tuoi dati
Questionario completato
Grazie per aver richiesto un appuntamento senza impegno con un nostro Consulente del Credito e Assicurativo.

Hai inserito correttamente tutti i dati necessari e a breve riceverai una e-mail con un link da convalidare per inviare i tuoi dati.
Affiliato
Bra Re Sas
Via Pollenzo, 8/A 12042 Bra (CN)

Il nostro staff


  • Davide Leotta
    Affiliato

  • Filippo Cruciani
    Collaboratore

  • Giulia Mantovani
    Coordinatrice
Via Pollenzo, 8/A 12042 Bra (CN)
Zona: Bra
Mostra su mappa
Orari: Lunedì 9:00 - 12:30 / 15:00 - 20:00 Martedì 9:00 - 12:30 / 15:00 - 20:00 Mercoledì 9:00 - 12:30 / 15:00 - 20:00 Giovedì 9:00 - 12:30 / 15:00 - 20:00 Venerdì 9:00 - 12:30 / 15:00 - 20:00 Sabato 9:00 - 12:30 / 15:00 – 18:30
Affiliato
Bra Re Sas
Via Pollenzo, 8/A 12042 Bra (CN)

2026 Tecnocasa Franchising S.p.A. - P. IVA 08365160152 - Via Monte Bianco 60/A 20089 Rozzano (MI). Ogni agenzia ha un proprio titolare ed è autonoma. Privacy policy | Policy utilizzo | Cookie policy