Trilocale in vendita

Bra, Via Giuseppe Verdi
€ 148.000
Prezzo aggiornato
3 locali 3 locali
71 Mq 71 Mq
1 bagno 1 bagno

Trilocale in vendita

Bra, Via Giuseppe Verdi

Descrizione annuncio

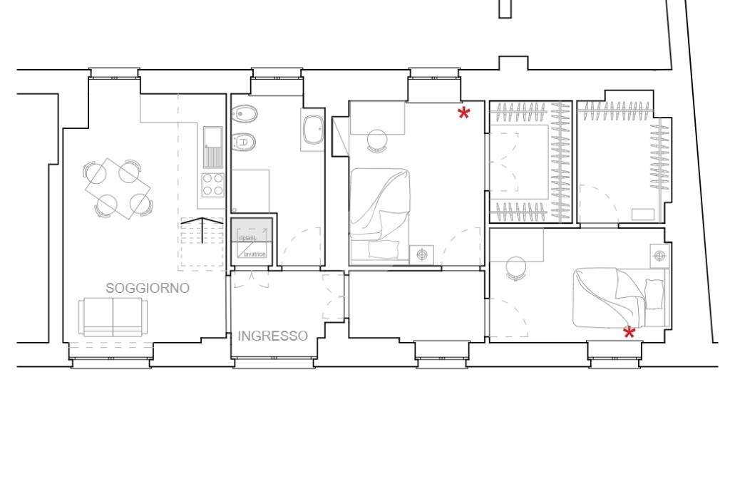
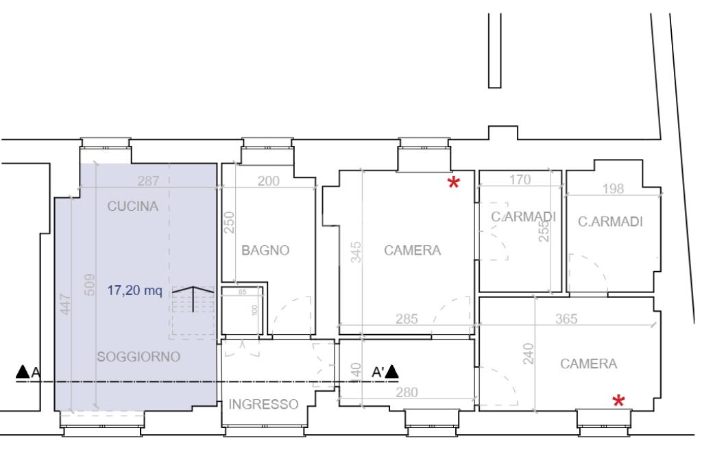
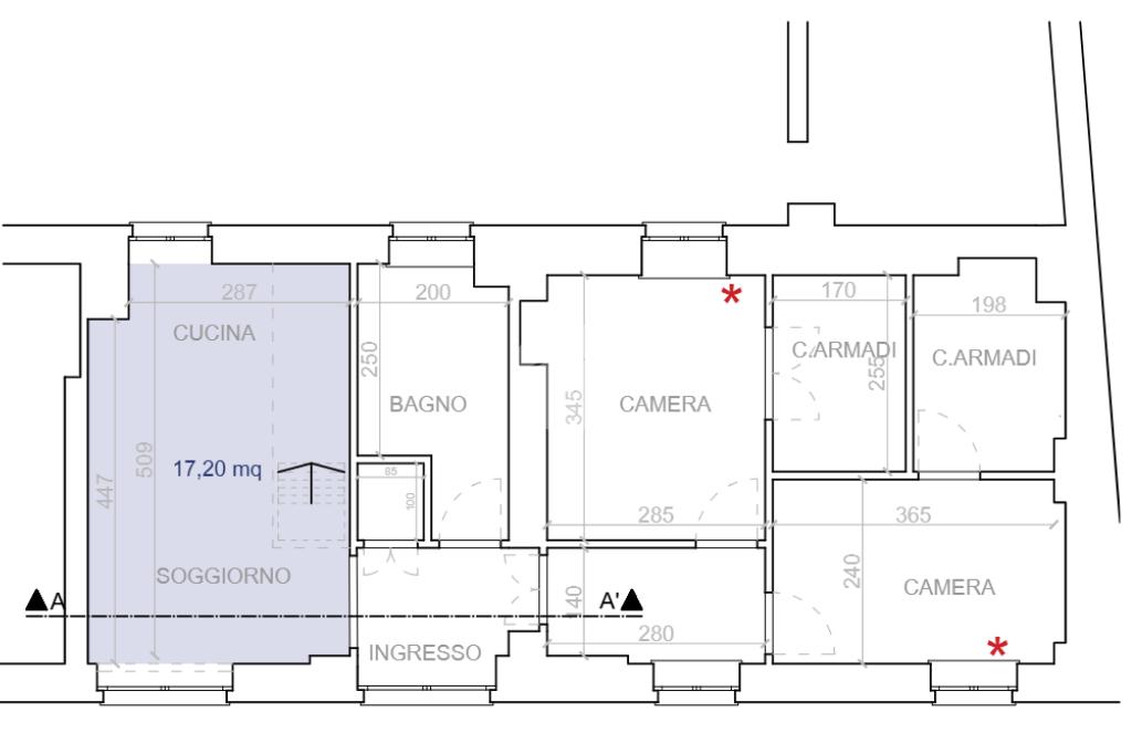
BRA: in pieno centro ed in posizione comoda a tutti i servizi, spazioso trilocale di 71 mq sito al piano terra, con accesso da Via Verdi.

La soluzione è in corso di totale ristrutturazione e verrà consegnata chiavi in mano entro la primavera del 2026, in classe energetica A.

L'ingresso disimpegna i vari ambienti della casa.

Il soggiorno è living con angolo cottura a vista.

Due spaziose camere da letto, ognuna dotata della rispettiva cabina armadi, il bagno con doccia ed il ripostiglio/lavanderia completano il piano.

Ultima la proprietà un ampio magazzino di 27 mq nell'interno cortile, adiacente all'abitazione.

Il riscaldamento ed il raffrescamento sono gestiti in modalità autonoma, tramite pompa di calore, ed i costi accessori sono contenuti.

La soluzione è ideale sia come prima casa, sia come studio sia ad uso investimento.

Mostra tutto

Nelle vicinanze

Trasporto pubblico Trasporto pubblico
Bra
Bra
550 m
Bra (stazione FS)
Bra (stazione FS)
540 m
Bra (Gulliver)
Bra (Gulliver)
700 m
Ricariche auto elettriche Ricariche auto elettriche
Stazione di Bra | ENELX
490 m
Bra Servizi SRL
1,7 Km
Scuole Scuole
Scuola Elementare R. L. Montalcini
100 m
Liceo G. Gandino
300 m
Istituto San Giuseppe
310 m
Istituto d'Istruzione Superiore "Velso Mucci"
340 m
Scuole
350 m
Farmacia Farmacia
Farmacia Bianchi
150 m
Farmacia Dalmasso
160 m
Farmacia
190 m
Sacro Cuore
190 m
Farmacia San Rocco
220 m
Ospedali Ospedali
Casa di Cura Privata Città di Bra
550 m
Ospedale Santo Spirito
580 m
ASL CN2 Consultorio Familiare CUP
750 m
Supermercati Supermercati
Mercatò Local
90 m
Prestofresco
690 m
In's Supermercati
720 m
La Casa del Senzaglutine S.n.c.
890 m
Lidl
970 m
Negozi Negozi
Balocco Fratelli
40 m
Delizie e Sapori S.N.C.
90 m
Manhattan
130 m
Pop Corn
170 m
Rebel
190 m
Bar Bar
Bar La Crota
60 m
Bar Dino
130 m
Bar San Giovanni
160 m
Caffè Posta
170 m
Caffè Pasticceria Converso
170 m
Ristoranti Ristoranti
Osteria Syslak
100 m
Antico Caffé Boglione
180 m
Pizzeria Gennaro Esposito
190 m
Bistrot Garibaldi
250 m
Santa Sofia Pizza Kebab
280 m
Mostra tutto

Caratteristiche

Rif.:
61177159
Piano:
Terra di 2
Totale piani:
2
Camere da letto:
2
Arredamento:
Assente
Condizionamento:
Autonomo
Mostra tutto
Prezzo Prezzo
€ 148.000
Rata mutuo Rata mutuo
€ 698 / mese
Spese annue Spese annue
€ 300
Proponi il tuo prezzoProponi il tuo prezzo

Classe Energetica

A4
A4
A4
A4
A4
A4
A4
A4
A4
EP globale non rinnovabile:
0.00 kW h/m² anno
EP globale rinnovabile:
0.00 kW h/m² anno
Anno di costruzione:
1900
Riscaldamento:
Autonomo
Tipo impianto:
Ad aria
Tipo alimentazione:
Aria

Prezzo ridotto di €1 (8%%)

Ti interessa visionare l'immobile?

Fissa un appuntamento  Fissa un appuntamento

Richiedi informazioni

Clicca su Leggi per aprire l'informativa
* Questi campi sono obbligatori

Calcola il tuo mutuo

Semplice e senza impegno
Anticipo

( % )
Mutuo

( % )

pochi semplici passi

inserisci i tuoi dati
Questionario completato
Grazie per aver richiesto un appuntamento senza impegno con un nostro Consulente del Credito e Assicurativo.

Hai inserito correttamente tutti i dati necessari e a breve riceverai una e-mail con un link da convalidare per inviare i tuoi dati.
Affiliato
Bra Re Sas
Via Pollenzo, 8/A 12042 Bra (CN)

Il nostro staff


  • Davide Leotta
    Affiliato

  • Filippo Cruciani
    Collaboratore

  • Giulia Mantovani
    Coordinatrice
Via Pollenzo, 8/A 12042 Bra (CN)
Zona: Bra
Mostra su mappa
Orari: Lunedì 9:00 - 12:30 / 15:00 - 20:00 Martedì 9:00 - 12:30 / 15:00 - 20:00 Mercoledì 9:00 - 12:30 / 15:00 - 20:00 Giovedì 9:00 - 12:30 / 15:00 - 20:00 Venerdì 9:00 - 12:30 / 15:00 - 20:00 Sabato 9:00 - 12:30 / 15:00 – 18:30
Affiliato
Bra Re Sas
Via Pollenzo, 8/A 12042 Bra (CN)

2026 Tecnocasa Franchising S.p.A. - P. IVA 08365160152 - Via Monte Bianco 60/A 20089 Rozzano (MI). Ogni agenzia ha un proprio titolare ed è autonoma. Privacy policy | Policy utilizzo | Cookie policy