Attico in vendita

Bra, Via Ascanio Sobrero
€ 205.000
5 locali 5 locali
146 Mq 146 Mq
2 bagni 2 bagni

Attico in vendita

Bra, Via Ascanio Sobrero

Descrizione annuncio

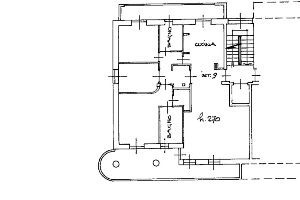
BRA: in posizione comoda al centro e a tutti i servizi che la città offre, attico di 146 mq sito al quinto ed ultimo piano, servito di ascensore, di una palazzina realizzata nel 1986, curata e rimodernata nel tempo nelle parti comuni.

L'immobile gode di ottima esposizione ed è libero su tre arie.

Tramite porta blindata si accede alla spaziosa zona giorno della casa, composta dalla cucina abitabile e da un ampio soggiorno con camino, uniti in un unico grande ambiente open space; dalla cucina è possibile accedere al balcone lato sud-ovest della casa, con vista sulle montagne, mentre dal soggiorno si accede ad uno stupendo terrazzo, esposto a sud-est, con una spettacolare vista sulla città.

Tramite disimpegno si accede alla zona notte, dotata di tre camere da letto, una delle quali matrimoniale, con bagno e cabina armadi privati.

Ultimano il piano il bagno, con uscita sul balcone e doccia multifunzione, ed un comodo ripostiglio/lavanderia incassato a muro, nel disimpegno della zona notte.

Completano la proprietà un locale sottotetto, attualmente non collegato all'appartamento ma dotato di scarichi per un eventuale bagno di servizio, la cantina ed una spaziosa autorimessa.

L'immobile gode di riscaldamento autonomo a metano, con caldaia nuova a condensazione, e di impianto di antifurto.

L'immobile è infine ideale per famiglie, grazie alla vicinanza ad ogni tipo di comodità e grazie alla presenza di aree verdi attorno allo stabile e di vari locali condominiali, ideali per lo svago dei propri figli.

Vi è la possibilità con prezzo a parte di acqistare le varie armadiate a muro, realizzate su misura, e parte del mobilio presente in casa.

Mostra tutto

Nelle vicinanze

Trasporto pubblico Trasporto pubblico
Bra
Bra
1,2 Km
Bra (stazione FS)
Bra (stazione FS)
1,2 Km
Bra (v. Cuneo/bv. v. Cherasco)
Bra (v. Cuneo/bv. v. Cherasco)
1,7 Km
Bandito
Bandito
2,8 Km
Ricariche auto elettriche Ricariche auto elettriche
Stazione di Bra | ENELX
1,2 Km
Bra Servizi SRL
1,7 Km
Scuole Scuole
Scuola Media "Carlo Alberto Dalla Chiesa
570 m
Asilo Nido Comunale
860 m
Scuole
930 m
Istituto San Giuseppe
970 m
Istituto d'Istruzione Superiore "Velso Mucci"
1,2 Km
Farmacia Farmacia
Farmacia
380 m
Farmacia Bainotti
620 m
Farmacia Bianchi
1,1 Km
Parafarmacia Marchisio
1,1 Km
Fides
1,3 Km
Ospedali Ospedali
ASL CN2 Consultorio Familiare CUP
480 m
Ospedale Santo Spirito
910 m
Casa di Cura Privata Città di Bra
1,7 Km
Supermercati Supermercati
Mercatò Local
680 m
La Casa del Senzaglutine S.n.c.
760 m
In's Supermercati
840 m
Sapore di Mare
1,0 Km
Paniate
1,1 Km
Negozi Negozi
Pasticceria Zucchero e Fantasia
400 m
Rosso Dario
490 m
Panetteria Seghesio
750 m
Panetteria Fagnola
770 m
Panificio Songia
920 m
Bar Bar
Bar 19' Fermata
390 m
Harri's Bar
390 m
Bar
680 m
Bar Roberto
740 m
Bar del Viale
740 m
Ristoranti Ristoranti
Ristorante Il Principe
490 m
Pizzeria Pipote
520 m
Ristorante Cinese Nin Hao
780 m
Pizzeria dei Fiori
910 m
Self-Service Gusto Giusto
1,0 Km
Mostra tutto

Caratteristiche

Rif.:
61126442
Piano:
5 di 5 con ascensore (ultimo Piano)
Box:
1
Balconi:
1
Terrazzi:
1
Camere da letto:
3
Mostra tutto
Prezzo Prezzo
€ 205.000
Rata mutuo Rata mutuo
€ 971 / mese
Spese annue Spese annue
€ 2.000
Proponi il tuo prezzoProponi il tuo prezzo

Classe Energetica

F
F
F
F
F
F
F
F
F
EP globale non rinnovabile:
176.02 kW h/m² anno
EP globale rinnovabile:
59.35 kW h/m² anno
EP invernale del fabbricato:
EP estiva del fabbricato:
Anno di costruzione:
1986
Riscaldamento:
Autonomo
Tipo impianto:
A radiatori
Tipo alimentazione:
Metano

Ti interessa visionare l'immobile?

Fissa un appuntamento  Fissa un appuntamento

Richiedi informazioni

Clicca su Leggi per aprire l'informativa
* Questi campi sono obbligatori

Calcola il tuo mutuo

Semplice e senza impegno
Anticipo

( % )
Mutuo

( % )

pochi semplici passi

inserisci i tuoi dati
Questionario completato
Grazie per aver richiesto un appuntamento senza impegno con un nostro Consulente del Credito e Assicurativo.

Hai inserito correttamente tutti i dati necessari e a breve riceverai una e-mail con un link da convalidare per inviare i tuoi dati.
Affiliato
Bra Re Sas
Via Pollenzo, 8/A 12042 Bra (CN)

Il nostro staff


  • Davide Leotta
    Affiliato

  • Filippo Cruciani
    Collaboratore

  • Giulia Mantovani
    Coordinatrice
Via Pollenzo, 8/A 12042 Bra (CN)
Zona: Bra
Mostra su mappa
Orari: Lunedì 9:00 - 12:30 / 15:00 - 20:00 Martedì 9:00 - 12:30 / 15:00 - 20:00 Mercoledì 9:00 - 12:30 / 15:00 - 20:00 Giovedì 9:00 - 12:30 / 15:00 - 20:00 Venerdì 9:00 - 12:30 / 15:00 - 20:00 Sabato 9:00 - 12:30 / 15:00 – 18:30
Affiliato
Bra Re Sas
Via Pollenzo, 8/A 12042 Bra (CN)

2026 Tecnocasa Franchising S.p.A. - P. IVA 08365160152 - Via Monte Bianco 60/A 20089 Rozzano (MI). Ogni agenzia ha un proprio titolare ed è autonoma. Privacy policy | Policy utilizzo | Cookie policy